|
|
Descriptions:
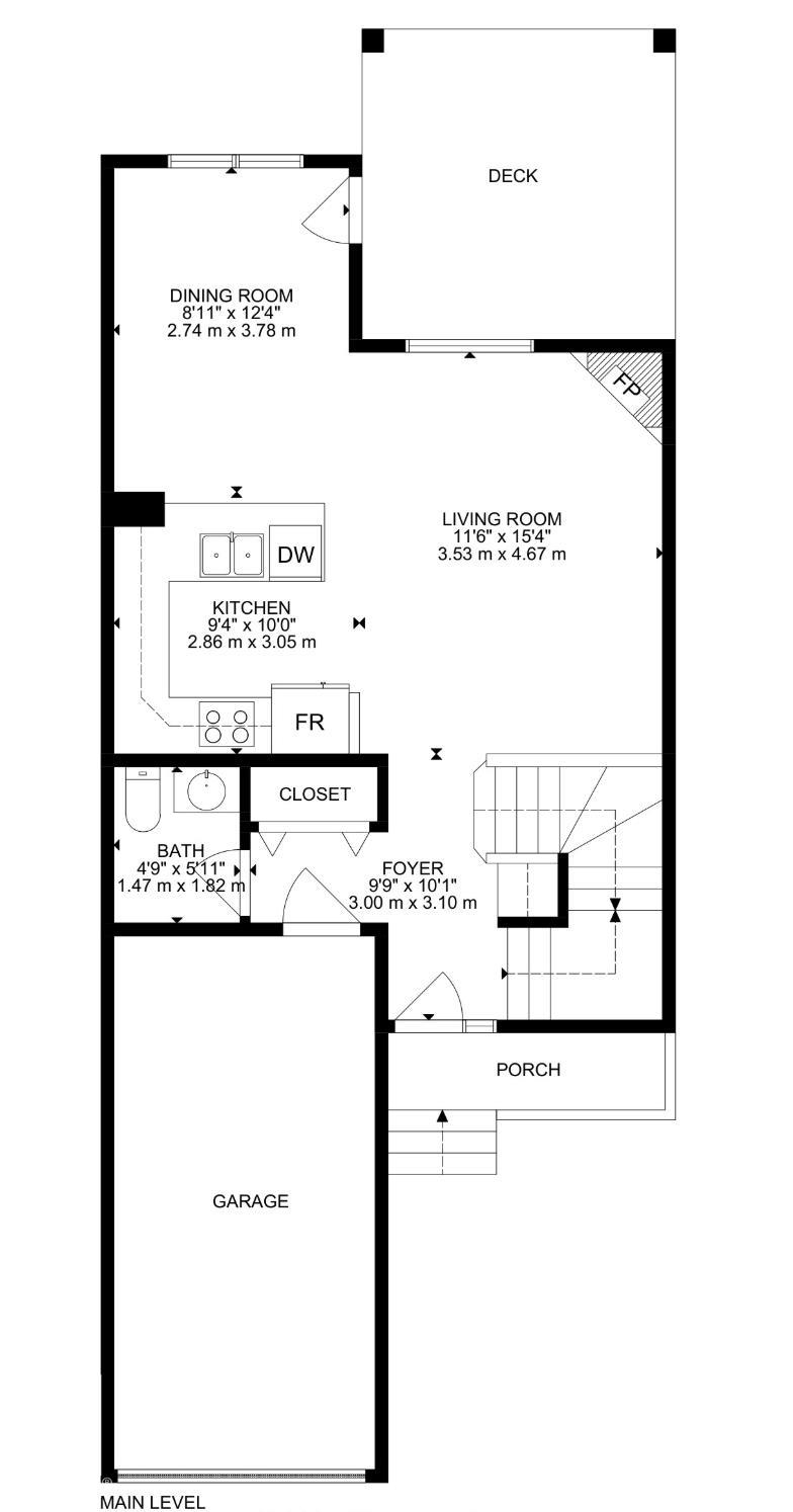
Turn-key half duplex on a rare, massive pie-shaped lot in highly sought-after South Terwillegar! Discover this fully finished 3-bedroom, 2.5-bath duplex offering over 1,700 sq.ft. of total developed space, positioned on an expansive 639 mý lot with a sunny SE-facing backyard. Enjoy exceptional outdoor living with a large deck, gazebo, mature privacy trees, and handy storage shed. The open main level features a cozy corner gas fireplace, peninsula-style kitchen, stylish tile flooring, abundant natural light and a professional fresh coat of paint throughout! Stay comfortable year-round with central A/C and a brand-new H/E furnace for optimal energy savings. The finished basement adds a spacious family room, versatile office/playroom nook, laundry/utility area, extra storage, and a newer HWT. The upstairs owner's suite offers a private 4 piece ensuite + walk-in closet. Best of all-no condo fees! Family-friendly neighborhood, close to all amenities, shops, transit, rec center, Henday, schools and more. 10/10!
|
|
|
| Includes: |
|
Air Conditioning-Central, Dishwasher-Built-In, Dryer, Garage Control, Garage Opener, Microwave Hood Fan, Refrigerator, Storage Shed, Stove-Electric, Washer, Window Coverings |
|
|
|
|
|
| Site Influences: |
| Fenced, Flat Site, Landscaped, Playground Nearby, Public Transportation, Schools, Shopping Nearby |
|
| Legal Description: |
| ACCESS Legal Description |
|
| Location & Listing Info: |
| Neighbourhood: |
South Terwillegar
|
|
| Lot Shape: |
Pie Shaped |
|
|
|
|
|
| Property Info: |
|
| Property Type: |
Half Duplex |
| Home Style: |
2 Storey |
| Year Built: |
2006 |
| Total Floor Area: |
1,227 sq. ft. |
| Front Exposure: |
Northwest
|
|
|
|
|
|
| Exterior: |
|
| Exterior: |
Fenced, Flat Site, Landscaped, Playground Nearby, Public Transportation, Schools, Shopping Nearby |
| Front Exposure: |
Northwest |
| Roof: |
Asphalt Shingles |
|
|
|
|
|
|
|
|
|
|
| Rooms: |
|
| Total Bedrooms: |
3
(Bedrooms Above: 3)
|
| Bathrooms: |
Full: 2
/ Half: 1
|
| Rooms Above: |
6 |
|
|
|
|
|
| Additional Info: |
|
| Heating: |
Y |
| Basement: |
Full, Finished |
| Basement Type: |
Full, Finished |
| Floor Finish: |
Carpet, Ceramic Tile, Vinyl Plank |
| Parking: |
Single Garage Attached |
|
|
|
|
|
|
|
|
|
|
|
|
|
|
|
 |
Contact Biljana Ceklic -
4107 99 St, Edmonton, Alberta, T6E3N4
|
|
|
|
|
|
|
|
|
|
Copyright 2026 by the REALTORS® Association of Edmonton. All Rights Reserved. Data is deemed reliable but is not guaranteed accurate by the REALTORS® Association of Edmonton. Data was last updated February 17, 2026, 3:48 am. |
|
|
|
|
The data included on this website is deemed to be reliable, but is not guaranteed to be accurate by the REALTORS® Association of Edmonton.
MLS®, Multiple Listing Service®, and the associated logos are all registered certification marks owned by CREA and are used to identify real estate services provided by brokers and salespersons who are members of CREA. The trademarks REALTOR®, REALTORS® and the REALTOR® logo are controlled by The Canadian Real Estate Association (CREA) and identify real estate professionals who are members of CREA. Used under license.
|